Villa a schiera centrale in vendita

Monsummano Terme, Via Ribocco - Grotta Parlanti
€ 155.000
Prezzo aggiornato
4 locali 4 locali
100 Mq 100 Mq
1 bagno 1 bagno

Villa a schiera centrale in vendita

Monsummano Terme, Via Ribocco - Grotta Parlanti

Descrizione annuncio

MONSUMMANO TERME - ZONA SEMI CENTRALE

VILLETTA A SCHIERA CON GIARDINO

L’abitazione è inserita in una zona residenziale di Monsummano Terme, una posizione ideale per chi desidera vivere in un contesto riservato senza rinunciare ai servizi e alla vicinanza al centro.

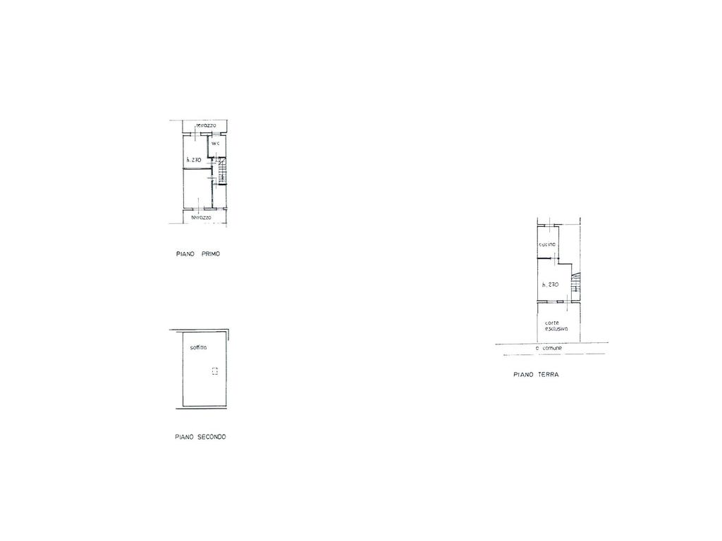
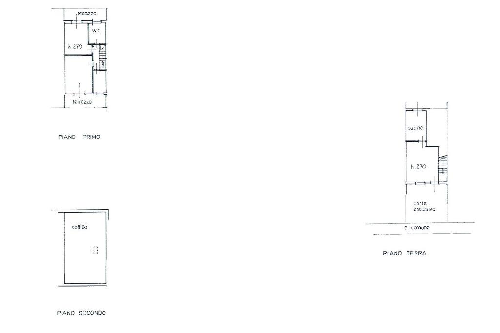
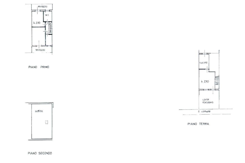
La villetta si sviluppa su due livelli fuori terra per c. ca 85 mq, con ambienti ben distribuiti e funzionali, oltre ad una soffitta di c. ca 45 mq, posta al secondo piano.

Lo spazio esterno frontale, con accesso diretto dal soggiorno, rappresenta un piacevole prolungamento della zona giorno, e valorizza ulteriormente l'abitazione.

L’ingresso conduce al piano terra, dove si apre un soggiorno luminoso, cuore della casa e ambiente dedicato alla convivialità. Completa il piano la cucina abitabile, corredata di un ampio ripostiglio, funzionale spazio di servizio che consente di mantenere l’abitazione sempre ordinata e ben organizzata.

Dalla cucina si accede al resede tergale, dotato di cancello carrabile, che consente di parcheggiare comodamente l'auto all'interno della proprietà, oltre ad essere ideale per pranzi e momenti di relax all'aperto.

Una scala interna ci conduce alla zona notte, situata al piano primo, composta da due camere da letto, entrambe dotate di terrazzo, e di un piccolo studio, spazi che garantiscono comfort e riservatezza a ogni componente della famiglia.

Completa il piano un bagno finestrato servito di vasca e di doccia.

La villetta, realizzata negli anni ’90 e parzialmente ristrutturata nel 2005, si presenta in buono stato di manutenzione, ed è dotata di infissi in legno con doppio vetro e zanzariere, assicurando una buona vivibilità nel tempo.

Contattaci subito per maggiori informazioni e per fissare una visita all'immobile:

- chiamando lo 0572/52. 09. 62

- scrivendoci su whatsapp al 353. 4402764

- inviando una e-mail all'indirizzo di posta pthoe@tecnocasa. it

oppure

visita le nostre pagine Facebook e Instagram 'Gruppo Tecnocasa Monsummano'

Ogni agenzia ha un proprio titolare ed è autonoma - Le presenti informazioni non costituiscono elemento contrattuale.

L'indirizzo riportato non individua l'esatta posizione dell'immobile ma individua la zona di riferimento

Mostra tutto

Nelle vicinanze

Trasporto pubblico Trasporto pubblico
stazione di Montecatini Terme-Monsummano
stazione di Montecatini Terme-Monsummano
2,3 Km
Montecatini Alto
Montecatini Alto
2,4 Km
Francesca Nord, 1099
Francesca Nord, 1099
190 m
Francesca Nord, 1099 Fr.
Francesca Nord, 1099 Fr.
200 m
Ricariche auto elettriche Ricariche auto elettriche
COOP Monsummano | EnelX
1,8 Km
Hotel Parma E Oriente
2,8 Km
Hotel Astoria
2,9 Km
Bingo Regina Montecatini | EnelX
3,0 Km
Scuole Scuole
Scuole
490 m
Liceo scientifico Coluccio Salutati
1,9 Km
Istituto Alberghiero Ferdinando Martini - Sede
2,1 Km
Scuola Secondaria di Primo Grado "Giuseppe Giusti"
2,4 Km
Farmacia Farmacia
Farmacia Biagini
890 m
Farmacia Cecarelli
1,2 Km
Farmacia Satti
1,3 Km
Farmacia Barone
2,5 Km
Parafarmacia Esselunga
2,6 Km
Supermercati Supermercati
Sigma
880 m
Conad
1,4 Km
Penny
1,6 Km
coop.fi
1,8 Km
Conad City
2,2 Km
Negozi Negozi
Alimentari Bonta' Fresca
340 m
Panettieri Trovo'
1,1 Km
Conbipel
1,7 Km
Panificio 2000
1,9 Km
Incom
2,0 Km
Bar Bar
Bar
850 m
Circolo A.R.C.I Caffetteria di Piazza
1,1 Km
Tiffany
1,1 Km
Dadamaino
1,9 Km
Vizi e Stravizi
2,3 Km
Ristoranti Ristoranti
Vivo
430 m
L'Osteria
1,1 Km
ristorante pizzeria SottoGrotta di Zerellari
1,3 Km
Ristoranti
1,7 Km
Park Hotel & Ristorante Le Sorgenti
1,7 Km
Mostra tutto

Caratteristiche

Rif.:
61185655
Piano:
Su più livelli di 3
Totale piani:
3
Posti auto:
2
Terrazzi:
2
Camere da letto:
3
Mostra tutto
Prezzo Prezzo
€ 155.000
Rata mutuo Rata mutuo
€ 731 / mese
Spese annue Spese annue
€ 0
Proponi il tuo prezzoProponi il tuo prezzo

Classe Energetica

G
G
G
G
G
G
G
G
G
EP globale non rinnovabile:
414.26 kW h/m² anno
EP globale rinnovabile:
2.16 kW h/m² anno
EP invernale del fabbricato:
EP estiva del fabbricato:
Anno di costruzione:
1990
Riscaldamento:
Autonomo
Tipo impianto:
A radiatori
Tipo alimentazione:
Metano

Prezzo ridotto di €1 (9%%)

Ti interessa visionare l'immobile?

Fissa un appuntamento  Fissa un appuntamento

Richiedi informazioni

Clicca su Leggi per aprire l'informativa
* Questi campi sono obbligatori

Calcola il tuo mutuo

Semplice e senza impegno
Anticipo

( % )
Mutuo

( % )

pochi semplici passi

inserisci i tuoi dati
Questionario completato
Grazie per aver richiesto un appuntamento senza impegno con un nostro Consulente del Credito e Assicurativo.

Hai inserito correttamente tutti i dati necessari e a breve riceverai una e-mail con un link da convalidare per inviare i tuoi dati.
Affiliato
Studio Monsummano Terme Sas
Via Matteotti, 64 51015 Monsummano Terme (PT)

Il nostro staff


  • Emanuela Di Sandro
    Affiliata

  • Anna Colucci
    Collaboratrice

  • Grace Joy Lanni
    Collaboratrice

  • Caterina Pacini
    Collaboratrice
Via Matteotti, 64 51015 Monsummano Terme (PT)
Zona: Monsummano Terme
Mostra su mappa
Affiliato
Studio Monsummano Terme Sas
Via Matteotti, 64 51015 Monsummano Terme (PT)

2026 Tecnocasa Franchising S.p.A. - P. IVA 08365160152 - Via Monte Bianco 60/A 20089 Rozzano (MI). Ogni agenzia ha un proprio titolare ed è autonoma. Privacy policy | Policy utilizzo | Cookie policy