Bilocale in vendita

Monsummano Terme, Via Enrico de nicola
€ 100.000
Prezzo aggiornato
2 locali 2 locali
50 Mq 50 Mq
1 bagno 1 bagno

Bilocale in vendita

Monsummano Terme, Via Enrico de nicola

Descrizione annuncio

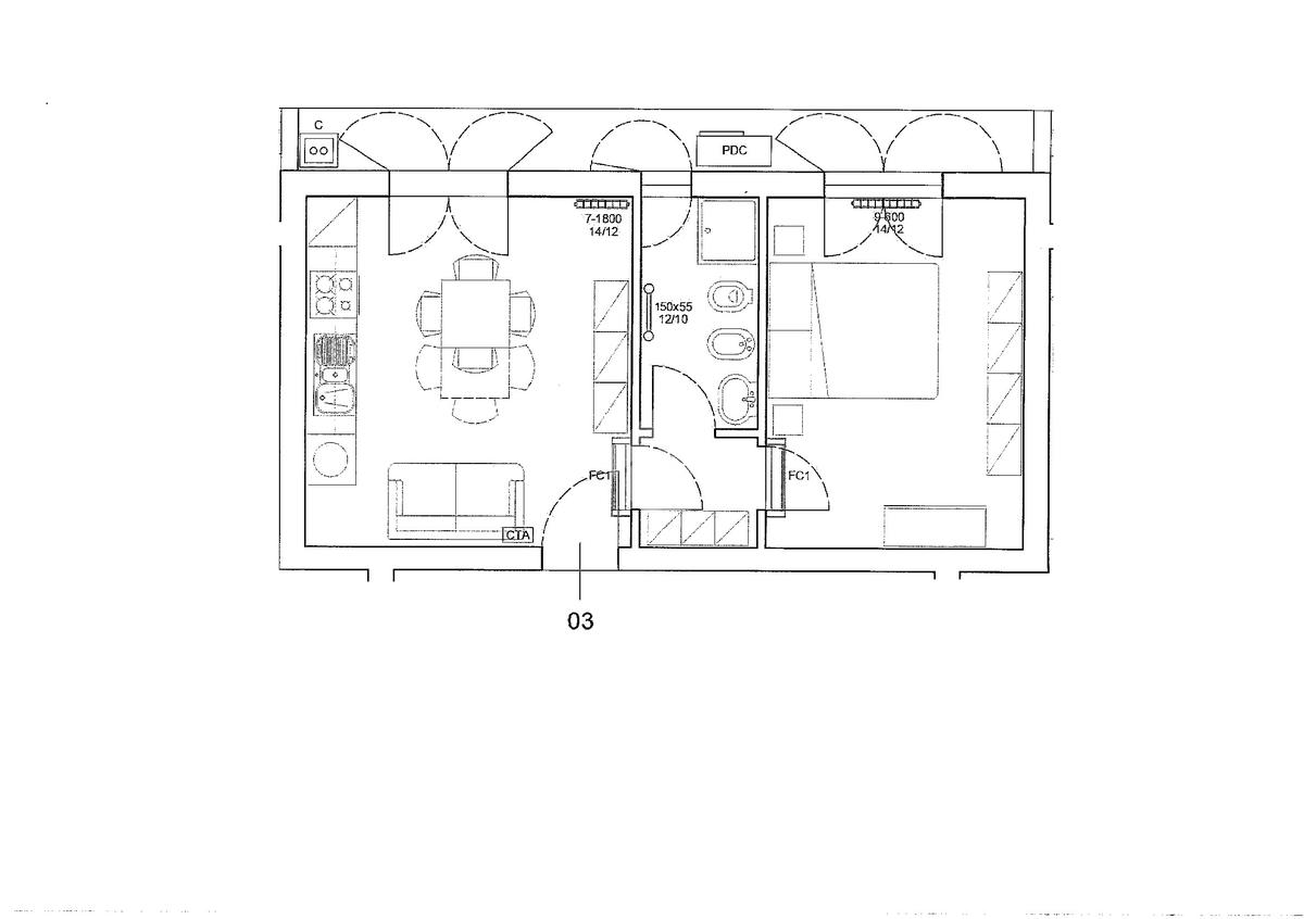
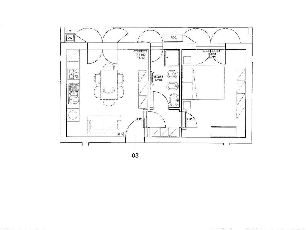
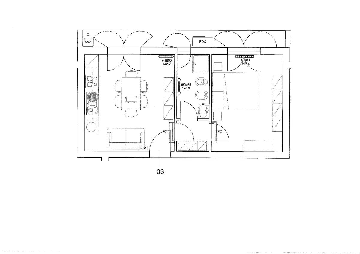
MONSUMMANO TERME - ZONA SEMI-CENTRALE

PIANO TERRA CON RESEDE

In zona residenziale vicina a tutti i servizi, proponiamo bilocale di nuova costruzione con resede di proprietà.

L’abitazione è composta da soggiorno con angolo cottura open space, camera e bagno finestrato con doccia.

L'immobile si inserisce in un nuovo complesso residenziale in fase di realizzazione.

La costruzione nasce da un progetto moderno, con particolare attenzione a comfort, risparmio energetico e qualità dei materiali.
In questa fase è ancora possibile personalizzare le rifiniture interne, scegliendo pavimenti, rivestimenti e tonalità.

Infissi in PVC con doppio vetro isolante,
persiane in alluminio e porta d’ingesso blindata. Pavimenti e rivestimenti in klinker di alta qualità. Sanitari filo muro con scarichi silenziati.
Impianto di riscaldamento a pavimento e inoltre sono presenti pompe di calore.

A completare la dotazione impiantistica scaldabagni di ultima generazione per la produzione di acqua calda.

L'immobile è in laterizio con coibentazione interna in lana di roccia ed è dotata di impianto fotovoltaico.

Classe energetica A.
Utenze indipendenti.
Posto auto di proprietà.


Possibilità di acquistare garage e cantina separatamente.

Un'abitazione moderna e efficiente, ideale per chi cerca comfort e qualità costruttiva.

Soluzioni di questo tipo sono molto richieste: contattaci subito per non perdere l’opportunità di personalizzare la tua nuova casa!

- chiamando lo 0572/52.09.62

- scrivendoci su whatsapp al 324. 8848434

- inviando una e-mail all'indirizzo di posta pthoe@tecnocasa. it

oppure

visita le nostre pagine Facebook e Instagram 't_monsummano_cintolese'

Ogni agenzia ha un proprio titolare ed è autonoma - Le presenti informazioni non costituiscono elemento contrattuale.

L'indirizzo riportato non individua l'esatta posizione dell'immobile ma individua la zona di riferimento

Mostra tutto

Nelle vicinanze

Trasporto pubblico Trasporto pubblico
Francesca Sud, 44
Francesca Sud, 44
40 m
Francesca Sud 51
Francesca Sud 51
40 m
Ricariche auto elettriche Ricariche auto elettriche
COOP Monsummano | EnelX
660 m
Scuole Scuole
Scuole
210 m
Scuola Secondaria di Primo Grado "Giuseppe Giusti"
680 m
Farmacia Farmacia
Farmacia Satti
550 m
Farmacia Cecarelli
680 m
Farmacia Barone
730 m
Farmacia Biagini
1,7 Km
Farmacia
2,6 Km
Supermercati Supermercati
coop.fi
690 m
Conad
750 m
Penny
820 m
Sigma
1,4 Km
Negozi Negozi
Alimentari Bonta' Fresca
2,2 Km
Negozi
2,3 Km
Panettieri Trovo'
2,4 Km
Conbipel
2,6 Km
Incom
3,0 Km
Bar Bar
Tiffany
810 m
Bar
1,4 Km
Circolo A.R.C.I Caffetteria di Piazza
2,3 Km
Bar Centrale
2,4 Km
Bar Valerio
2,5 Km
Ristoranti Ristoranti
Il Maialetto
100 m
ristorante pizzeria SottoGrotta di Zerellari
640 m
L'Osteria
810 m
Ristoranti
1,2 Km
La Veranda
1,2 Km
Mostra tutto

Caratteristiche

Rif.:
61181373
Piano:
Terra di 4 con ascensore
Totale piani:
4
Posti auto:
1
Terrazzi:
1
Camere da letto:
1
Mostra tutto
Prezzo Prezzo
€ 100.000
Rata mutuo Rata mutuo
€ 473 / mese
Spese annue Spese annue
€ 1.200
Proponi il tuo prezzoProponi il tuo prezzo

Classe Energetica

A1
A1
A1
A1
A1
A1
A1
A1
A1
EP globale non rinnovabile:
175.00 kW h/m² anno
EP globale rinnovabile:
175.00 kW h/m² anno
EP invernale del fabbricato:
EP estiva del fabbricato:
Anno di costruzione:
2026
Riscaldamento:
Autonomo
Tipo impianto:
A pavimento
Tipo alimentazione:
Pannelli

Prezzo ridotto di €1 (14%%)

Ti interessa visionare l'immobile?

Fissa un appuntamento  Fissa un appuntamento

Richiedi informazioni

Clicca su Leggi per aprire l'informativa
* Questi campi sono obbligatori

Calcola il tuo mutuo

Semplice e senza impegno
Anticipo

( % )
Mutuo

( % )

pochi semplici passi

inserisci i tuoi dati
Questionario completato
Grazie per aver richiesto un appuntamento senza impegno con un nostro Consulente del Credito e Assicurativo.

Hai inserito correttamente tutti i dati necessari e a breve riceverai una e-mail con un link da convalidare per inviare i tuoi dati.
Affiliato
Studio Monsummano Terme Sas
Via Matteotti, 64 51015 Monsummano Terme (PT)

Il nostro staff


  • Emanuela Di Sandro
    Affiliata

  • Anna Colucci
    Collaboratrice

  • Grace Joy Lanni
    Collaboratrice

  • Leonardo Marianantoni
    Coordinatore

  • Clarissa Nardi
    Coordinatrice

  • Caterina Pacini
    Collaboratrice
Via Matteotti, 64 51015 Monsummano Terme (PT)
Zona: Monsummano Terme
Mostra su mappa
Affiliato
Studio Monsummano Terme Sas
Via Matteotti, 64 51015 Monsummano Terme (PT)

2026 Tecnocasa Franchising S.p.A. - P. IVA 08365160152 - Via Monte Bianco 60/A 20089 Rozzano (MI). Ogni agenzia ha un proprio titolare ed è autonoma. Privacy policy | Policy utilizzo | Cookie policy