Quadrilocale in vendita

Monsummano Terme, Via Paradiso
€ 115.000
4 locali 4 locali
100 Mq 100 Mq
1 bagno 1 bagno

Quadrilocale in vendita

Monsummano Terme, Via Paradiso

Descrizione annuncio

MONSUMMANO TERME – ZONA SEMI-CENTRALE

QUADRILOCALE CON GIARDINO

GARAGE DI PROPRIETÀ

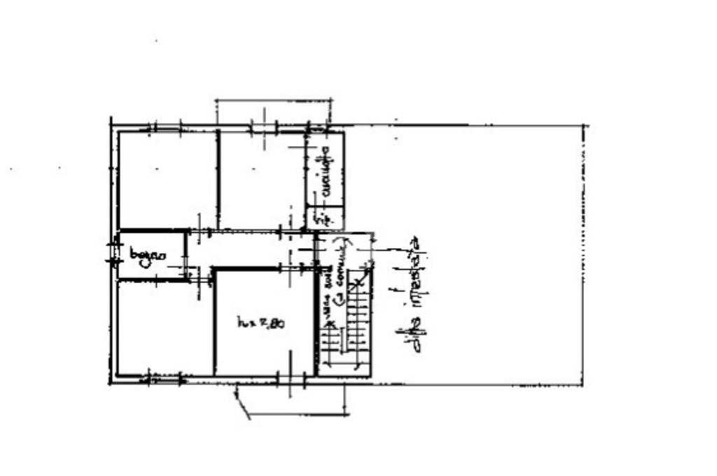
In un contesto residenziale tranquillo e ben servito di Monsummano Terme, proponiamo un quadrilocale caratterizzato da ambienti funzionali e da spazi esterni vivibili.

L’ingresso conduce a un comodo disimpegno che separa in modo funzionale la zona giorno: da un lato la sala da pranzo con cucinotto, dall’altro un ampio soggiorno. Entrambi gli ambienti godono dell’accesso al terrazzo, offrendo luce naturale e un piacevole sfogo esterno.

La zona notte ospita due spaziose camere matrimoniali e un bagno finestrato, ristrutturato nel 2018 finestrato e dotato di doccia.

A completamento della proprietà troviamo:

Giardino distaccato di c. ca 50 mq, ideale per chi desidera uno spazio esterno privato;

Garage di proprietà, comodo per parcheggio e rimessaggio.

L’immobile conserva le sue finiture originali e presenta infissi in alluminio con doppio vetro. È inoltre dotato di predisposizioni per condizionatori: due nella zona giorno e una nell’ingresso

Una soluzione ideale per chi cerca tranquillità senza rinunciare alla vicinanza ai servizi principali.

Contattaci subito per maggiori informazioni e per fissare una visita all'immobile:

- chiamando lo 0572/52. 09. 62

- scrivendoci su whatsapp al 353. 4402764

- inviando una e-mail all'indirizzo di posta pthoe@tecnocasa. it

oppure

visita le nostre pagine Facebook e Instagram 'Gruppo Tecnocasa Monsummano'

Ogni agenzia ha un proprio titolare ed è autonoma - Le presenti informazioni non costituiscono elemento contrattuale.

L'indirizzo riportato non individua l'esatta posizione dell'immobile ma individua la zona di riferimento

Mostra tutto

Nelle vicinanze

Trasporto pubblico Trasporto pubblico
stazione di Montecatini Terme-Monsummano
stazione di Montecatini Terme-Monsummano
2,2 Km
Montecatini Alto
Montecatini Alto
2,8 Km
Viaempolese380(Ceccherino)
Viaempolese380(Ceccherino)
150 m
Viaempolese323/C(Ceccherino)
Viaempolese323/C(Ceccherino)
160 m
Ricariche auto elettriche Ricariche auto elettriche
COOP Monsummano | EnelX
1,1 Km
Bingo Regina Montecatini | EnelX
2,7 Km
Hotel Parma E Oriente
2,8 Km
Parcheggio Toti
3,0 Km
Scuole Scuole
Scuole
380 m
Scuola Secondaria di Primo Grado "Giuseppe Giusti"
1,8 Km
Liceo scientifico Coluccio Salutati
1,9 Km
Istituto Alberghiero Ferdinando Martini - Sede
2,1 Km
Farmacia Farmacia
Farmacia Biagini
450 m
Farmacia Cecarelli
720 m
Farmacia Satti
820 m
Farmacia Barone
2,1 Km
Parafarmacia Esselunga
2,3 Km
Supermercati Supermercati
Sigma
180 m
Conad
740 m
Penny
850 m
coop.fi
1,1 Km
Eurospin
2,0 Km
Negozi Negozi
Alimentari Bonta' Fresca
1,1 Km
Panettieri Trovo'
1,1 Km
Conbipel
1,4 Km
Incom
1,8 Km
Panificio 2000
2,6 Km
Bar Bar
Bar
170 m
Tiffany
600 m
Circolo A.R.C.I Caffetteria di Piazza
1,0 Km
Dadamaino
1,8 Km
Bar Valerio
2,0 Km
Ristoranti Ristoranti
L'Osteria
560 m
ristorante pizzeria SottoGrotta di Zerellari
740 m
Vivo
1,2 Km
Il Maialetto
1,4 Km
Park Hotel & Ristorante Le Sorgenti
1,6 Km
Mostra tutto

Caratteristiche

Rif.:
61151344
Piano:
1 di 2 (ultimo Piano)
Box:
1
Posti auto:
1
Terrazzi:
2
Camere da letto:
3
Mostra tutto
Prezzo Prezzo
€ 115.000
Rata mutuo Rata mutuo
€ 537 / mese
Spese annue Spese annue
€ 0
Proponi il tuo prezzoProponi il tuo prezzo

Classe Energetica

G
G
G
G
G
G
G
G
G
EP globale non rinnovabile:
175.00 kW h/m² anno
EP globale rinnovabile:
2.16 kW h/m² anno
EP invernale del fabbricato:
EP estiva del fabbricato:
Anno di costruzione:
1982
Riscaldamento:
Autonomo
Tipo impianto:
A radiatori
Tipo alimentazione:
Metano

Ti interessa visionare l'immobile?

Fissa un appuntamento  Fissa un appuntamento

Richiedi informazioni

Clicca su Leggi per aprire l'informativa
* Questi campi sono obbligatori

Calcola il tuo mutuo

Semplice e senza impegno
Anticipo

( % )
Mutuo

( % )

pochi semplici passi

inserisci i tuoi dati
Questionario completato
Grazie per aver richiesto un appuntamento senza impegno con un nostro Consulente del Credito e Assicurativo.

Hai inserito correttamente tutti i dati necessari e a breve riceverai una e-mail con un link da convalidare per inviare i tuoi dati.
Affiliato
Studio Monsummano Terme Sas
Via Matteotti, 64 51015 Monsummano Terme (PT)

Il nostro staff


  • Emanuela Di Sandro
    Affiliata

  • Anna Colucci
    Collaboratrice

  • Grace Joy Lanni
    Collaboratrice

  • Caterina Pacini
    Collaboratrice
Via Matteotti, 64 51015 Monsummano Terme (PT)
Zona: Monsummano Terme
Mostra su mappa
Affiliato
Studio Monsummano Terme Sas
Via Matteotti, 64 51015 Monsummano Terme (PT)

2026 Tecnocasa Franchising S.p.A. - P. IVA 08365160152 - Via Monte Bianco 60/A 20089 Rozzano (MI). Ogni agenzia ha un proprio titolare ed è autonoma. Privacy policy | Policy utilizzo | Cookie policy